Проекти

Будівництво Інженерне обладнання Рейковий транспорт ТРЦ "Gulliver", Київ Житловий комплекс The Touraine, Нью-Йорк Залізнична лінія Rhaetian Railway, Швейцарія ТРЦ "Respublika", Київ Panorama Towers, Мюнхен Готель"Hilton", Київ Метро District Line, Лондон Готель"Fairmont Grand Hotel", Київ Залізнична лінія Berlin-Cottbus, Німеччина Житловий комплекс "На Зверинецькій", Київ Бізнес-центр "101 Tower", Київ The Rushmore Building, Нью-Йорк Готель "Fairmont Grand Hotel", Київ Залізничний тунель Brenner Base Tunnel, Австрія-Італія Офісний комплекс "IQ Business Center", Київ Метро East London Line, Лондон Готель"Hilton", Київ Студія звукозапису "Freestyle" Анатолія Розанова, Полтава Житловий комплекс "Four Suns", Москва Бізнес-центр "Парус", Київ Житловий комплекс "На Ольшанській", Київ Бізнес-центр "Міленіум", Київ Житловий комплекс "Crystal Park", Київ Телекомпанія "Новий канал", Київ Телекомпанія "1+1", Київ

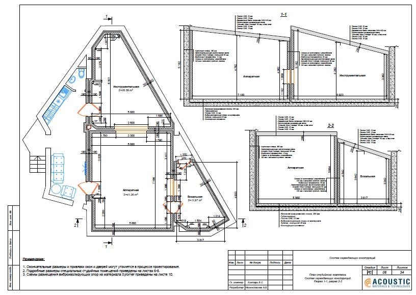
Студія звукозапису "Freestyle" Анатолія Розанова, Полтава

Розташування — м. Полтава

Проектне бюро: Acoustic Project - Захист від шуму, акустика приміщень

Загальна площа — 260 м. кв 

Проектування — 2012 р.


Будівельна фізика:

-віброізоляція студійних приміщень "box in box";

-віброізоляція агрегатів системи вентиляції;

-віброізоляція системи кондиціонування повітря;

-заходи по зниженню шуму інженерного обладнання;

-проведення комплексу натурних віброакустичних вимірювань